Asut näin
Hirsinen
rantamökki Rasijärven
aurinkoisessa Rantalehdossa.
Malo-luokitus:
*****
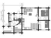
Huoneistoala: 72
m2
Vuodepaikat: 4+2
henkilölle, parisänky ja
kerrossänky
Huoneet:
Tupakeittiö, valoisa ja tilava
Makuuhuoneet, 2 kpl
Pukuhuone
Pesuhuone
WC
Puulämmitteinen sauna
Eteinen
Kuisti, 20 m2
Lämmitys: Sähkölämmitys,
varaava takka
|
| |
| |
|
|
|
|
Kodista
löydät
Sähkö
Juokseva kylmä vesi
Juokseva kuuma vesi
Varaava liuskekivitakka
Sähköliesi/-uuni
Liesituuletin
Mikroaaltouuni
Kahvinkeitin
Vedenkeitin
Astiasto 6 henkilölle Astianpesukone
Jääkaappi/pakastinlokero
Pyykinpesukone
Radio
Televisio
Vuodevaatteet: lakana, pussilakana, tyynyliina

|
|

Oma ranta
Luontokoti on Rasijärven rannalla.
Satoja metrejä omaa rauhallista rantaviivaa. Etäisyys mökistä
rantaan 30 m. Uimapaikka hiekoitettu. Puulaituri.
Rannassa oma vene. Vapaonget vapaasti käytössä.
Pihassa
Nurmikenttä
Avogrilli
Puuliiteri/varasto
Kaivo
Hulju tilauksesta
|